The Source
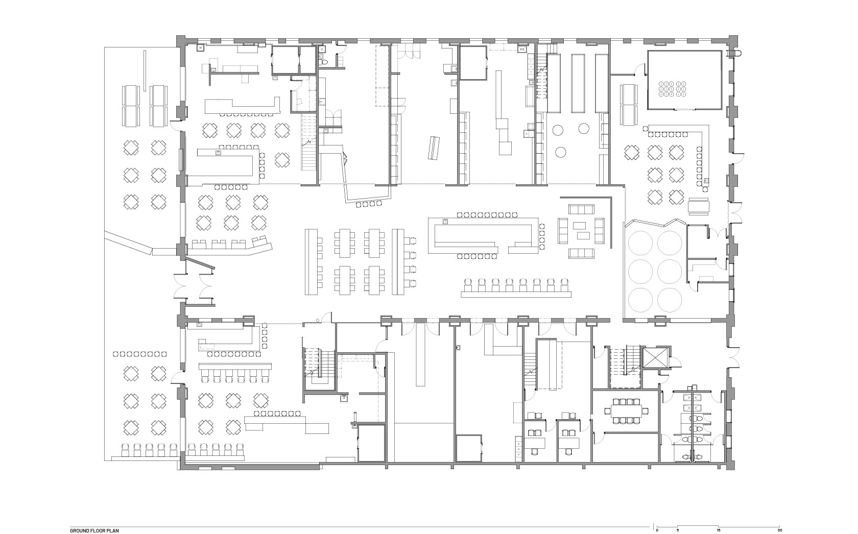
Located in Denver’s River North industrial district, this 19th-century foundry was transformed into a center of food production. The building houses restaurants, a micro-brewery tasting room, a central bar, a baker, coffee, retail, and co-working.


The Source has established a strong identity as a market in the city and has served as a catalyst for the ongoing transformation of the area. Most recently used as a warehouse, the Source is one of the few remaining industrial buildings of its era in the district. With the existing roof supported by elegant steel trusses, the ceiling is lofty and filled with natural light. Bracing structure to support the building from deteriorating is minimally invasive, leaving the industrial texture of the space intact.


To contrast the existing industrial character, tenant spaces are demised with walls of exposed framing that raise and lower at the individual interior shop fronts. Large glazed garage doors cut into the front of the building for increased natural light. The clear distinction between new and old highlights the historic structure while serving contemporary uses.




The industrial character of the building lends itself to the spectacle of food production, open kitchens and exposed work areas showcase the products such as the butcher shop, brewery, and coffee roaster.






3350 Brighton Boulevard
Denver, Colorado
28,000 square feet
Completed 2013
2015 AIA Colorado Chapter Design Award of Citation
2014 AIA Denver Chapter Award of Honor
2014 AIA Wyoming Chapter Award of Citation
2014 AIA Western Mountain Region Design Award of Citation
2014 Colorado Preservation Inc. State Honor Award: Historic Rehabilitation
News:
2016, Retail Properties Quarterly: Market Halls: Elevating the Urban Experience, The Source Hotel and Market Hall
2016 Luxe Interiors and Design: Date Book
2016, The Denver Post: Western Daughters Butcher Shoppe to open BBQ restaurant in RiNo














